NETR G-1032

NETR G-1032

$0.00

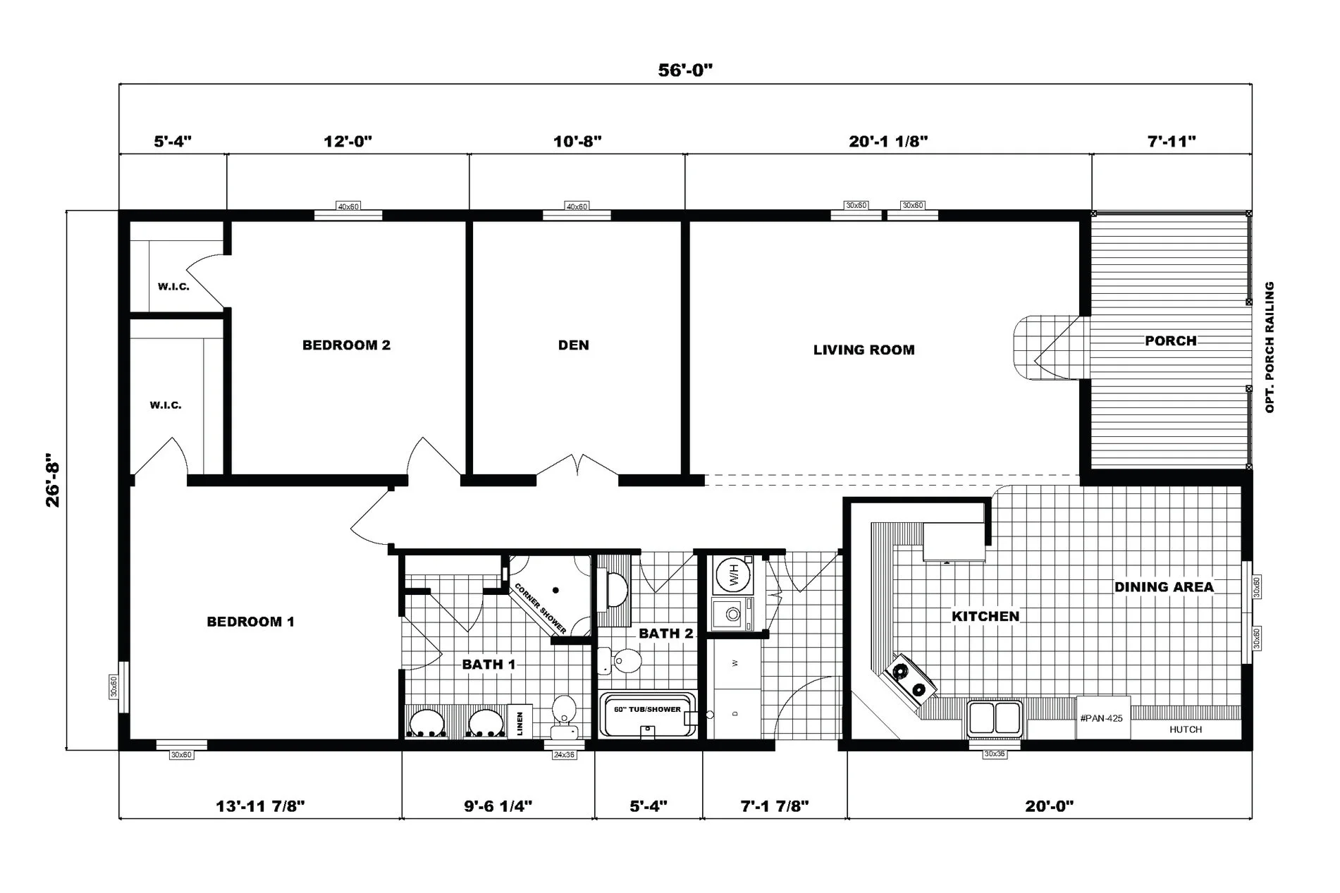
26'8" x 56'  |  2 Bed 2 Bath  |  Den | 1,283 sq. ft.

[FLOOR PLAN PDF]

Add To Cart

NETR homes have been specially designed for our customers in the Northern states (Maine, Vermont, New Hampshire, Connecticut, Massachusetts, Rhode Island). Transportation rules in these areas are very strict and the slightly more narrow width of our NETR homes meet all necessary shipping requirements.