Model Homes & Experience Center

 

Pine Grove's factory model center is the first of its kind and provides to prospective home buyers a unique opportunity to preview a spectrum of home plans from our portfolio. Unique in its scale and variety, our factory model home center combines with our 10,000 square foot Experience Center to offer a unique and useful opportunity to home buyers, regardless of whether they’re finalizing that last selection or still exploring options.

Hours: Mon-Fri, 8am-4pm | Phone: 570-345-6500

 

Ranch Homes - Now Open and Available to Tour!

 

Community Homes - Now Open and Available to Tour!

 

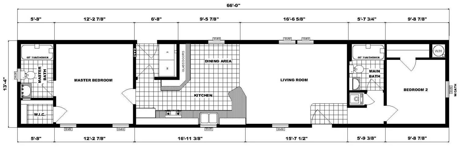
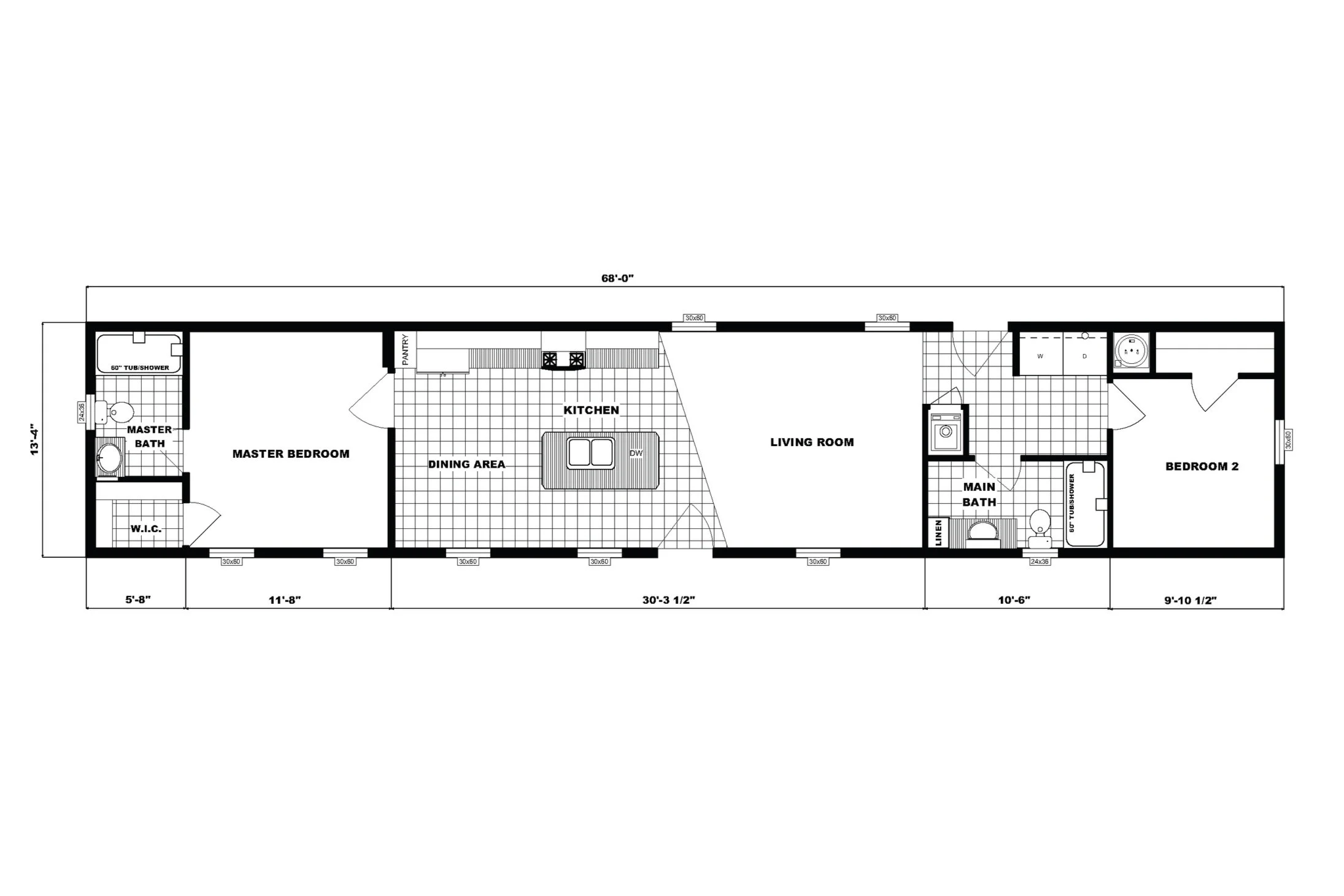
Single-Section Homes - Now Open and Available to Tour!


The Experience Center

You're invited to visit the largest showroom and experience center in the manufactured housing industry. The Experience Center boasts over 10,000 sq. ft. of indoor display area. Several of our specialty kitchens & baths are on display, as well as almost every feature and option available from Pine Grove.

The Experience Center is most of all a venue for the homebuyer to make the vital choices that turn a house into your future home. It is constantly updated and upgraded with our latest samples and options to aid the home buying process. In addition, Builders/Retailers and home buyers may review options in our climate-controlled experience center with many conveniences, including private office space, restrooms, and vending.

Also in the Experience Center:

  • Four Fireplace Designs

  • Complete Door & Window Displays (White and Beige)

  • Complete Cabinetry, Countertop, and Ceramic Tile Backsplash Display

  • Complete Shingle and Siding/Shutter Display

  • Extensive Exterior Lighting Display

  • Full Array of Floor Sample Displays

  • Corian® Countertop Display

  • Hardwood Flooring Display

  • Dormers & Roof Construction Feature